SEARCH
物件検索
  1. TOP
  2. 物件検索
  3. MF桜橋ビル
募集中

MF桜橋ビル

エリア:>西梅田

ガラスカーテンウォールが特徴の西梅田エリアで人気のオフィスビル

  • JR/大阪駅 徒歩7分・JR東西線/北新地駅 徒歩4分・四つ橋線/西梅田駅 徒歩4分
  • 大阪市北区曽根崎新地2丁目6番23号
  • 保証金50%オフ適用可能ビル※適用条件あり
  • 大手・上場企業が多い人気の西梅田エリア
  • 1フロア59坪(最小10坪~)のオフィスビル
  • 全室採光良好・レイアウトのしやすい間取り
  • 省エネ対策(反射ガラス・空調)
営業
より
平面駐車場あり。1階にコンビニありととても利便性の高いハイグレードオフィスビルです。水回りも改修したばかりでとても綺麗です。

画像をクリックで拡大してご覧いただけます。

募集区画

左右にスクロールできます
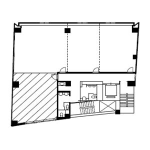
階数 面積 入居時期 平面図 画像 コメント
2 10.28坪(33.98㎡) 2025.11月以降 平面図
10 23.55坪(77.85㎡) 即日可 平面図 採光・眺望抜群で仕事が捗る事間違いありません
8 45.45坪(150.24㎡) 即日可 平面図

パーキング

空き状況: 満車

アクセス

  • 該当ビル:該当ビル
  • 周辺弊社ビル:周辺弊社ビル
今後入居頂ける予定の物件や、
類似物件をご紹介出来る場合も
ございます。

営業時間/平日 9:00~18:00

周辺施設

⾦融機関

紀陽銀行
徒歩6
大阪商工信用金庫
徒歩4
大阪シティ信用金庫
徒歩4
スルガ銀行
徒歩6

コンビニ

ローソン
徒歩0
ファミリーマート
徒歩2
セブンイレブン
徒歩2

郵便局

大阪曽根崎新地郵便局
徒歩2

喫茶店

タリーズコーヒー
徒歩3
スターバックスコーヒー
徒歩3

ショッピング

ハービスPLAZA
徒歩3
ブリーゼブリーゼ
徒歩3
コクミンドラッグ
徒歩4

物件概要

所在地
大阪市北区曽根崎新地2丁目6番23号
最寄駅
JR/大阪駅 徒歩7分・JR東西線/北新地駅 徒歩4分・四つ橋線/西梅田駅 徒歩4分
延床面積
2,517.37m²(761.50坪)
基準階面積
193.12m²(58.42坪)
規模
地上10階
空調
冷暖フリー個別空調方式・全熱交換器
セキュリティ
機械警備(24時間対応)及び有人管理
床仕上
OAフロア
高速通信
各階EPS内光ケーブル敷設
駐車場
4台
今後入居頂ける予定の物件や、
類似物件をご紹介出来る場合も
ございます。

営業時間/平日 9:00~18:00

おすすめ物件

RECOMMEND
MF桜橋ビル

MF桜橋ビル

JR/大阪駅 徒歩7分・JR東西線/北新地駅 徒歩4分・四つ橋線/西梅田駅 徒歩4分

  • #駅徒歩4分
  • #保証金半額
  • #西梅田・福島
  • #大通り沿い
  • #全室眺望
  • #省エネ
  • #遮熱・遮断熱
  • #機械警備
  • #管理人在駐
  • #駐車場
  • #マルチアクセス
  • #ハイグレード
MF桜橋2ビル

MF桜橋2ビル

JR/大阪駅 徒歩7分・JR東西線/北新地駅 徒歩4分 ・四つ橋線/西梅田駅 徒歩4分

  • #駅徒歩4分
  • #保証金半額
  • #地震対策(免震構造)
  • #西梅田・福島
  • #大通り沿い
  • #全室眺望
  • #省エネ
  • #遮熱・遮断熱
  • #機械警備
  • #管理人在駐
  • #駐車場
  • #駐輪場
  • #マルチアクセス
  • #ハイグレード
MF西梅田ビル

MF西梅田ビル

JR/大阪駅 徒歩10分・JR東西線/北新地駅 徒歩7分・四ツ橋線/西梅田駅 徒歩7分・阪神電鉄/福島駅 徒歩2分

  • #地震対策(制震構造)
  • #保証金半額
  • #駅徒歩2分
  • #西梅田・福島
  • #大通り沿い
  • #全室眺望
  • #省エネ
  • #遮熱・遮断熱
  • #機械警備
  • #管理人在駐
  • #駐車場
  • #駐輪場
  • #マルチアクセス
  • #ハイグレード
MF南森町3ビル

MF南森町3ビル

堺筋・谷町線/南森町駅・JR東西線/大阪天満宮駅 徒歩3分(4号出口)

  • #保証金半額
  • #駅徒歩3分
  • #南森町
  • #大通り沿い
  • #全室眺望
  • #省エネ
  • #遮熱・遮断熱
  • #機械警備
  • #管理人在駐
  • #駐車場
  • #駐輪場
  • #マルチアクセス
  • #ハイグレード
  • #地震対策
MF南森町5ビル

MF南森町5ビル

堺筋・谷町線/南森町駅・JR東西線/大阪天満宮駅 徒歩2分(2号出口)

  • #地震対策(制震構造)
  • #保証金半額
  • #駅徒歩2分
  • #南森町
  • #大通り沿い
  • #全室眺望
  • #省エネ
  • #遮熱・遮断熱
  • #機械警備
  • #管理人在駐
  • #駐車場
  • #駐輪場
  • #マルチアクセス
  • #ハイグレード
MF梅田ビル

MF梅田ビル

JR/大阪駅 徒歩10分・谷町線/東梅田駅 徒歩5分(M-14 出口)・谷町線/扇町駅 徒歩5分(5番 出口)

  • #地震対策(制震構造)
  • #保証金半額
  • #東梅田・西天満
  • #駅徒歩5分以内
  • #大通り沿い
  • #全室眺望
  • #省エネ
  • #遮熱・遮断熱
  • #機械警備
  • #管理人在駐
  • #駐車場
  • #駐輪場
  • #マルチアクセス
  • #ハイグレード
MF天満橋ビル

MF天満橋ビル

谷町線 ・京阪/天満橋駅 徒歩1分(2号出口)

  • #保証金半額
  • #駅徒歩1分
  • #天満橋
  • #大通り沿い
  • #全室眺望
  • #省エネ
  • #機械警備
  • #管理人在駐
  • #駐車場
  • #マルチアクセス
  • #ハイグレード
MF南森町ビル

MF南森町ビル

堺筋・谷町線/南森町駅・JR東西線/大阪天満宮駅 徒歩1分(4号出口)

  • #保証金半額
  • #地震対策(免震構造)
  • #駅徒歩1分
  • #南森町
  • #大通り沿い
  • #省エネ
  • #遮熱・遮断熱
  • #機械警備
  • #管理人在駐
  • #駐車場
  • #駐輪場
  • #マルチアクセス
  • #ハイグレード
MF南森町2ビル

MF南森町2ビル

堺筋・谷町線/南森町駅・JR東西線/大阪天満宮駅 徒歩1分(2号出口)

  • #保証金半額
  • #駅徒歩1分
  • #南森町
  • #大通り沿い
  • #全室眺望
  • #省エネ
  • #遮熱・遮断熱
  • #貸会議室(近隣)
  • #機械警備
  • #管理人在駐
  • #駐輪場
  • #マルチアクセス
  • #ハイグレード
  • #地震対策
MF西天満ビル

MF西天満ビル

堺筋・谷町線/南森町駅・JR東西線/大阪天満宮駅 徒歩5分(2号出口)・京阪本線・御堂筋/淀屋橋駅 徒歩8分(1号出口)

  • #保証金半額
  • #地震対策(免震構造)
  • #東梅田・西天満
  • #駅徒歩5分以内
  • #大通り沿い
  • #省エネ
  • #遮熱・遮断熱
  • #機械警備
  • #管理人在駐
  • #駐車場
  • #駐輪場
  • #マルチアクセス
  • #ハイグレード