SEARCH
物件検索
募集中
千代田ビル西館
エリア:>西梅田
人気の西梅田エリアで所在地も「梅田1丁目」。コストパフォーマンスの優れたオフィスビル
- JR/大阪駅 徒歩6分・JR東西線/北新地駅・四つ橋線/西梅田駅 徒歩3分(C-49 出口)
- 大阪市北区梅田2丁目5番4号
- 保証金50%オフ適用可能ビル※適用条件あり
- 大手・上場企業が多い人気の西梅田エリア
- 1フロア98坪(最小5坪~)の中規模オフィスビル
- 省エネ空調採用
- 機械警備・管理人在駐のダブル警備
- 営業
より - 入居テナント様から「求人応募が増えた」と言うお話をよく頂きます。住所が「梅田」、その効果は絶大です。勿論、リニューアルも完了済です。
募集区画
左右にスクロールできます
パーキング
空き状況:
近隣あり
アクセス
周辺施設
⾦融機関
- 大阪シティ信用金庫
- 徒歩3分
- 大阪商工信用金庫
- 徒歩5分
- ゆうちょ銀行
- 徒歩5分
コンビニ
- ファミリーマート
- 徒歩1分
- ローソン
- 徒歩2分
- セブンイレブン
- 徒歩2分
郵便局
- 大阪曽根崎新地郵便局
- 徒歩2分
喫茶店
- スターバックスコーヒー
- 徒歩3分
ショッピング
- ハービスPLAZA
- 徒歩2分
- ブリーゼブリーゼ
- 徒歩2分
- コクミン薬局
- 徒歩3分
物件概要
- 所在地
- 大阪市北区梅田2丁目5番4号
- 最寄駅
- JR/大阪駅 徒歩6分・JR東西線/北新地駅・四つ橋線/西梅田駅 徒歩3分(C-49 出口)
- 延床面積
- 4,358.87m²(1,318.56坪)
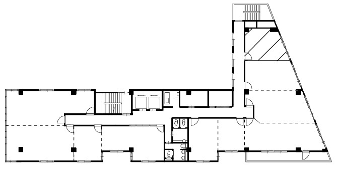
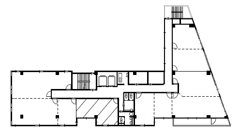
- 基準階面積
- 324.23m²(98.08坪)
- 規模
- 地上10階 ・ 地下1階
- 空調
- 個別空調方式
- セキュリティ
- 機械警備(24時間対応)及び有人管理
- 床仕上
- タイルカーペット(OAフロア可)
- 高速通信
- 各階EPS内光ケーブル敷設
お知らせ・ブログ
NEWS・BLOG
.jpg)
:該当ビル
:周辺弊社ビル

.jpg)

.jpg)
.jpg)

.jpg)
.jpg)

