SEARCH
物件検索
募集中
八千代ビル別館
エリア:大阪市北区>西天満
西天満公園を眼下に四季を感じられる希少性の高いオフィスビル。「南森町」駅も至近
- 堺筋・谷町線/南森町駅・JR東西線/大阪天満宮駅 徒歩3分(1号出口)
- 大阪市北区西天満5丁目8番15号
- 保証金50%オフ適用可能ビル※適用条件あり
- 士業の方含め、個人事業主の方に人気のビル
- 部屋から公園が望める絶好なロケーション
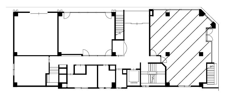
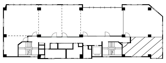
- 1フロア73坪(最小5坪~)の中規模オフィスビル
- リニューアル実施(EV・空調・トイレ・給湯室・廊下)
- 省エネ空調採用
- 営業
より - 何といっても目の前の公園。都会の中で四季を感じれる数少ないオフィスビルです。特に、士業の方等、個人事業主に人気があります。
募集区画
アクセス
周辺施設
⾦融機関
- 永和信用金庫
- 徒歩2分
- 紀陽銀行
- 徒歩3分
コンビニ
- ファミリーマート
- 徒歩1分
- ローソン
- 徒歩2分
郵便局
- 大阪野崎郵便局
- 徒歩5分
喫茶店
- ミスタードーナツ
- 徒歩3分
ショッピング
- コーヨー
- 徒歩5分
- スギ薬局
- 徒歩3分
物件概要
- 所在地
- 大阪市北区西天満5丁目8番15号
- 最寄駅
- 堺筋・谷町線/南森町駅・JR東西線/大阪天満宮駅 徒歩3分(1号出口)
- 延床面積
- 3,012.03m²(911.14坪)
- 基準階面積
- 245.55m²(74.28坪)
- 規模
- 地上8階・地下1階
- 空調
- 個別空調方式
- セキュリティ
- 機械警備(24時間対応)及び有人管理
- 床仕上
- タイルカーペット(OAフロア可)
- 高速通信
- 各階EPS内光ケーブル敷設
- 駐輪場
- あり
お知らせ・ブログ
NEWS・BLOG

:該当ビル
:周辺弊社ビル

.jpg)


.jpg)




