SEARCH
物件検索
募集中
桜橋八千代ビル
エリア:大阪市北区>西梅田
人気の西梅田エリアで所在地は「梅田2丁目」。そして外観/内観も好評なオフィスビル
- JR/大阪駅 徒歩6分・JR東西線/北新地駅・四つ橋線/西梅田駅 徒歩3分
- 大阪市北区梅田2丁目5番6号
- 保証金50%オフ適用可能ビル※適用条件あり
- 大手・上場企業が多い人気の西梅田エリア
- 1フロア100坪(最小9坪~)の中規模オフィスビル
- リニューアル実施(エントランス・トイレ・給湯室他)
- 省エネ空調採用
- 機械警備・管理人在駐のダブル警備
- 営業
より - 梅田で駐車場完備のビルは少なく重宝頂いています。阪神高速出入口も近く、車移動の多い企業様に人気です。
募集区画
パーキング
空き状況:
募集中
アクセス
周辺施設
⾦融機関
- 大阪シティ信用金庫
- 徒歩4分
- 大阪商工信用金庫
- 徒歩5分
- 紀陽銀行
- 徒歩6分
コンビニ
- ローソン
- 徒歩2分
- ファミリーマート
- 徒歩2分
- セブンイレブン
- 徒歩2分
郵便局
- 大阪曽根崎新地郵便局
- 徒歩2分
喫茶店
- スターバックスコーヒー
- 徒歩3分
- カフェ・ド・クリエ
- 徒歩5分
ショッピング
- ハービスPLAZA
- 徒歩2分
- ブリーゼブリーゼ
- 徒歩3分
- コクミン薬局
- 徒歩4分
物件概要
- 所在地
- 大阪市北区梅田2丁目5番6号
- 最寄駅
- JR/大阪駅 徒歩6分・JR東西線/北新地駅・四つ橋線/西梅田駅 徒歩3分
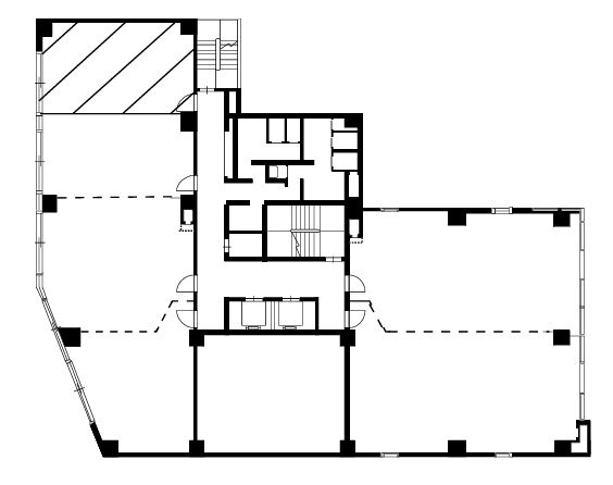
- 延床面積
- 4,573.08m²(1,383.36坪)
- 基準階面積
- 329.52m²(99.68坪)
- 規模
- 地上11階
- 空調
- 個別空調方式
- セキュリティ
- 機械警備(24時間対応)及び有人管理
- 床仕上
- タイルカーペット(OAフロア可)
- 高速通信
- 各階EPS内光ケーブル敷設
- 駐車場
- 24台
お知らせ・ブログ
NEWS・BLOG
.jpg)
:該当ビル
:周辺弊社ビル

.jpg)
.jpg)



.jpg)

.jpg)
.jpg)
-1.jpg)