SEARCH
物件検索
  1. TOP
  2. 物件検索
  3. 東梅田八千代ビル
募集中

東梅田八千代ビル

エリア:大阪市北区>東梅田

「東梅田」駅4分、3路線利用可能なマルチアクセス。リニューアルも完了済の人気のオフィスビル

  • JR/大阪駅 徒歩6分・谷町線/東梅田駅 徒歩4分(H-30 出口)
  • 大阪市北区中崎西2丁目2番1号
  • 保証金50%オフ適用可能ビル※適用条件あり
  • 1フロア83坪(最小6坪~)の中規模オフィスビル
  • リニューアル実施(EV・空調・トイレ・給湯室・廊下)
  • 全室採光良好・レイアウトのしやすい間取り
  • 省エネ空調採用
  • 機械警備・管理人在駐のダブル警備
営業
より
梅田エストすぐ、ヘップファイブ等商業施設も多くアフター5を楽しめるエリアです。LUUPポートも設置しています。利便性高く人気のビルです。

画像をクリックで拡大してご覧いただけます。

募集区画

左右にスクロールできます
階数 面積 入居時期 平面図 画像 コメント
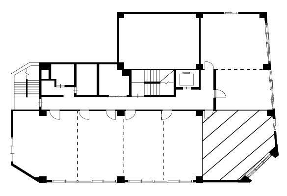
2 8.06坪(26.64㎡) 即日可 平面図
2 20.59坪(68.06㎡) 即日可 平面図 360° VIEW まとまった坪数が必要だけど価格を抑えた方に必見
4 29.06坪(96.06㎡) 即日可 平面図 360° VIEW

アクセス

  • 該当ビル:該当ビル
  • 周辺弊社ビル:周辺弊社ビル
今後入居頂ける予定の物件や、
類似物件をご紹介出来る場合も
ございます。

営業時間/平日 9:00~18:00

周辺施設

⾦融機関

南都銀行
徒歩4
みずほ銀行
徒歩6
三菱UFJ銀行
徒歩5
三井住友銀行
徒歩6

コンビニ

ファミリーマート
徒歩2
ローソン
徒歩2
セブンイレブン
徒歩2

郵便局

大阪鶴野町郵便局
徒歩3

ショッピング

ライフ
徒歩4
スギドラッグ
徒歩3

物件概要

所在地
大阪市北区中崎西2丁目2番1号
最寄駅
JR/大阪駅 徒歩6分・谷町線/東梅田駅 徒歩4分(H-30 出口)
延床面積
3,087.62m²(934.01坪)
基準階面積
274.18m²(82.94坪)
規模
地上10階
空調
個別空調方式
セキュリティ
機械警備(24時間対応)及び有人管理
床仕上
タイルカーペット(OAフロア可)
高速通信
光ファイバー幹線ルート確保
駐車場
26台
駐輪場
あり
今後入居頂ける予定の物件や、
類似物件をご紹介出来る場合も
ございます。

営業時間/平日 9:00~18:00

おすすめ物件

RECOMMEND
東梅田八千代ビル

東梅田八千代ビル

JR/大阪駅 徒歩6分・谷町線/東梅田駅 徒歩4分(H-30 出口)

  • #駅徒歩4分
  • #保証金半額
  • #東梅田・西天満
  • #全室眺望
  • #省エネ
  • #機械警備
  • #管理人在駐
  • #駐車場
  • #駐輪場
  • #マルチアクセス
MF梅田ビル

MF梅田ビル

JR/大阪駅 徒歩10分・谷町線/東梅田駅 徒歩5分(M-14 出口)・谷町線/扇町駅 徒歩5分(5番 出口)

  • #地震対策(制震構造)
  • #保証金半額
  • #東梅田・西天満
  • #駅徒歩5分以内
  • #大通り沿い
  • #全室眺望
  • #省エネ
  • #遮熱・遮断熱
  • #機械警備
  • #管理人在駐
  • #駐車場
  • #駐輪場
  • #マルチアクセス
  • #ハイグレード
MF桜橋2ビル

MF桜橋2ビル

JR/大阪駅 徒歩7分・JR東西線/北新地駅 徒歩4分 ・四つ橋線/西梅田駅 徒歩4分

  • #駅徒歩4分
  • #保証金半額
  • #地震対策(免震構造)
  • #西梅田・福島
  • #大通り沿い
  • #全室眺望
  • #省エネ
  • #遮熱・遮断熱
  • #機械警備
  • #管理人在駐
  • #駐車場
  • #駐輪場
  • #マルチアクセス
  • #ハイグレード
天満橋八千代ビル

天満橋八千代ビル

谷町線・京阪/天満橋駅 徒歩1分(2号出口)

  • #保証金半額
  • #駅徒歩1分
  • #天満橋
  • #大通り沿い
  • #全室眺望
  • #省エネ
  • #機械警備
  • #管理人在駐
  • #駐車場
  • #駐輪場
  • #マルチアクセス
MF南森町3ビル

MF南森町3ビル

堺筋・谷町線/南森町駅・JR東西線/大阪天満宮駅 徒歩3分(4号出口)

  • #保証金半額
  • #駅徒歩3分
  • #南森町
  • #大通り沿い
  • #全室眺望
  • #省エネ
  • #遮熱・遮断熱
  • #機械警備
  • #管理人在駐
  • #駐車場
  • #駐輪場
  • #マルチアクセス
  • #ハイグレード
  • #地震対策
MF南森町5ビル

MF南森町5ビル

堺筋・谷町線/南森町駅・JR東西線/大阪天満宮駅 徒歩2分(2号出口)

  • #地震対策(制震構造)
  • #保証金半額
  • #駅徒歩2分
  • #南森町
  • #大通り沿い
  • #全室眺望
  • #省エネ
  • #遮熱・遮断熱
  • #機械警備
  • #管理人在駐
  • #駐車場
  • #駐輪場
  • #マルチアクセス
  • #ハイグレード
MF西天満ビル

MF西天満ビル

堺筋・谷町線/南森町駅・JR東西線/大阪天満宮駅 徒歩5分(2号出口)・京阪本線・御堂筋/淀屋橋駅 徒歩8分(1号出口)

  • #保証金半額
  • #地震対策(免震構造)
  • #東梅田・西天満
  • #駅徒歩5分以内
  • #大通り沿い
  • #省エネ
  • #遮熱・遮断熱
  • #機械警備
  • #管理人在駐
  • #駐車場
  • #駐輪場
  • #マルチアクセス
  • #ハイグレード
MF西梅田ビル

MF西梅田ビル

JR/大阪駅 徒歩10分・JR東西線/北新地駅 徒歩7分・四ツ橋線/西梅田駅 徒歩7分・阪神電鉄/福島駅 徒歩2分

  • #地震対策(制震構造)
  • #保証金半額
  • #駅徒歩2分
  • #西梅田・福島
  • #大通り沿い
  • #全室眺望
  • #省エネ
  • #遮熱・遮断熱
  • #機械警備
  • #管理人在駐
  • #駐車場
  • #駐輪場
  • #マルチアクセス
  • #ハイグレード
MF桜橋ビル

MF桜橋ビル

JR/大阪駅 徒歩7分・JR東西線/北新地駅 徒歩4分・四つ橋線/西梅田駅 徒歩4分

  • #駅徒歩4分
  • #保証金半額
  • #西梅田・福島
  • #大通り沿い
  • #全室眺望
  • #省エネ
  • #遮熱・遮断熱
  • #機械警備
  • #管理人在駐
  • #駐車場
  • #マルチアクセス
  • #ハイグレード
MF新大阪ビル

MF新大阪ビル

JR ・御堂筋線/新大阪駅 徒歩7分

  • #大通り沿い(新御堂筋)
  • #保証金半額
  • #新大阪
  • #全室眺望
  • #省エネ
  • #遮熱・遮断熱
  • #貸会議室(近隣)
  • #機械警備
  • #管理人在駐
  • #駐車場
  • #駐輪場
  • #マルチアクセス
  • #ハイグレード
  • #地震対策