SEARCH
物件検索
募集中
新大阪千代田ビル別館
エリア:大阪市淀川区>新大阪
大企業が集まる新大阪北エリア、新御堂筋に面しロケーション、コストパフォーマンスの優れたオフィスビル
- JR ・御堂筋線/新大阪駅 徒歩6分
- 大阪市淀川区宮原4丁目4番63号
- 保証金50%オフ適用可能ビル※適用条件あり
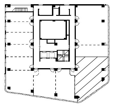
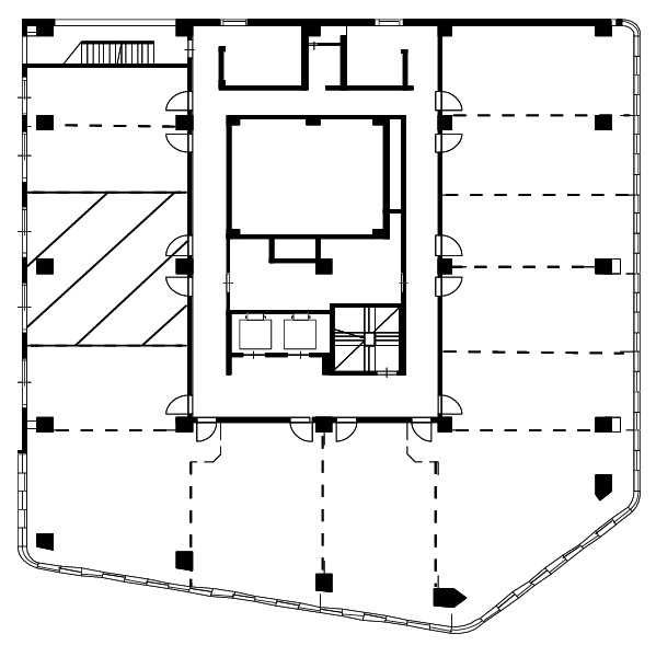
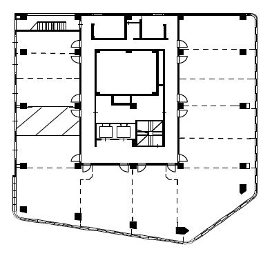
- 1フロア163坪(最小7坪~)の中規模オフィスビル
- リニューアル実施(EV・空調・トイレ・給湯室・廊下)
- 省エネ空調採用
- 機械警備・管理人在駐のダブル警備
- 貸会議室あり(最大20人収容)
- 営業
より - 駐車場・貸会議室完備でしかもフルリニューアル済。エレベーターも2基あり、とてもコスパの良いビルです。自信をもって紹介致します。
募集区画
左右にスクロールできます
パーキング
空き状況:
募集中
アクセス
周辺施設
⾦融機関
- 三井住友銀行
- 徒歩4分
- 三菱UFJ銀行
- 徒歩5分
コンビニ
- ローソン
- 徒歩1分
- ファミリーマート
- 徒歩3分
- セブンイレブン
- 徒歩2分
郵便局
- 淀川宮原郵便局
- 徒歩4分
ショッピング
- 成城石井
- 徒歩7分
- スギ薬局
- 徒歩2分
物件概要
- 所在地
- 大阪市淀川区宮原4丁目4番63号
- 最寄駅
- JR ・御堂筋線/新大阪駅 徒歩6分
- 延床面積
- 7,151.51m²(2,163.33坪)
- 基準階面積
- 538.64m²(162.94坪)
- 規模
- 地上10階
- 空調
- 個別空調方式
- セキュリティ
- 機械警備(24時間対応)及び有人管理
- 床仕上
- タイルカーペット(OAフロア可)
- 高速通信
- 各階EPS内光ケーブル敷設
- 駐車場
- 32台
お知らせ・ブログ
NEWS・BLOG
.jpg)
:該当ビル
:周辺弊社ビル

.jpg)


.jpg)




