SEARCH
物件検索
募集中
新大阪八千代ビル
エリア:大阪市淀川区>新大阪
「新大阪」駅すぐ、大企業が集まる人気の新大阪北エリアに立地のオフィスビル
- JR ・御堂筋線/新大阪駅 徒歩3分
- 大阪市淀川区宮原4丁目1番45号
- 保証金50%オフ適用可能ビル※適用条件あり
- 1フロア177坪(最小5坪~)の中規模オフィスビル
- リニューアル実施(EV・空調・トイレ・廊下)
- 省エネ空調採用
- 機械警備・管理人在駐のダブル警備
- 貸会議室近隣にあり(最大20人収容)
- 営業
より - 大企業が入居する大型ビルが立ち並ぶエリアに立地。各金融機関やお洒落な飲食店が数多くとても便利です。また、駅までは歩道橋を渡るだけです。
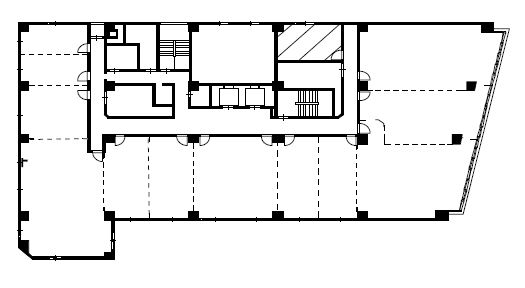
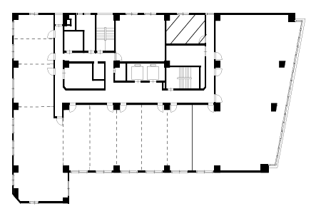
募集区画
パーキング
空き状況:
募集中
アクセス
周辺施設
⾦融機関
- 三井住友銀行
- 徒歩2分
- 三菱UFJ銀行
- 徒歩2分
コンビニ
- ローソン
- 徒歩1分
- ファミリーマート
- 徒歩2分
- セブンイレブン
- 徒歩3分
郵便局
- 新大阪駅北郵便局
- 徒歩6分
喫茶店
- ドトールコーヒーショップ
- 徒歩4分
- スターバックスコーヒー
- 徒歩4分
ショッピング
- 成城石井
- 徒歩4分
- スギ薬局
- 徒歩4分
物件概要
- 所在地
- 大阪市淀川区宮原4丁目1番45号
- 最寄駅
- JR ・御堂筋線/新大阪駅 徒歩3分
- 延床面積
- 7,468.29m²(2,259.16坪)
- 基準階面積
- 587.80m²(177.81坪)
- 規模
- 地上10階
- 空調
- 個別空調方式
- セキュリティ
- 機械警備(24時間対応)及び有人管理
- 床仕上
- タイルカーペット(OAフロア可)
- 高速通信
- 各階EPS内光ケーブル敷設
- 駐車場
- 22台
- 駐輪場
- あり
お知らせ・ブログ
NEWS・BLOG
.jpg)
:該当ビル
:周辺弊社ビル

.jpg)
.jpg)
.jpg)



.jpg)

.jpg)